|
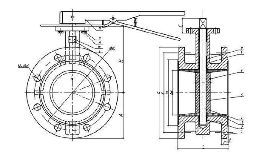
手柄法兰蝶阀D41X原理作用: 手柄法兰蝶阀的启闭件是一个圆盘形的蝶板,在阀体内绕其自身的轴线旋转,从而达到启闭或调节的目的。蝶阀的优点有结构简单、体积小、重量轻、安装尺寸小、开关迅速。 D41X/D41F型法兰蝶阀系列采用中线垂直板、软密封阀座结构,结构简单,制造方便,价格便宜;手动蝶阀是手柄驱动适用于适用于公称压力≤1.6MPa,公称通径小于DN200的各种水、油、气等介质的管道上。 手柄法兰蝶阀D41X性能特点: ①结构简单,力矩小,操作方便、迅速; ②具有良好的流量调节功能和密封性能,气压测试泄露为零; ③合成橡胶阀座具有耐腐蚀、耐冲蚀、尺寸稳定、回弹性好; ④可装配电动执行器、气动执行器,实现远程大规模集中控制。
![]()
|
-
结构简单,力矩小,操作方便、迅速
-
手动蝶阀启闭方便迅速、省力、流体阻力小,可以经常操作。
-
采用中线型结构,具有越关越紧的密封功能,密封性能可靠。
-
体积小、重量轻、安装尺寸小、开关迅速
-
密封副材料选用球墨铸铁和丁腈耐油橡胶配对,使用时间长
-
整体烤漆,能有效防止锈蚀且只要更换密封阀座密封材料,就可使用于不同介质。


